Die Meldung in Bildern
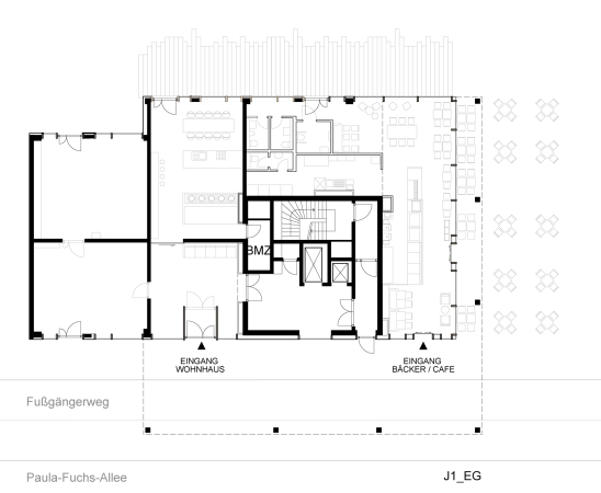
Heilbronner Hybridkonstruktion
Skaio Holzhochhaus von Kaden + Lager
Bild 46/49
Erdgeschoss
Bild: Kaden + Lager