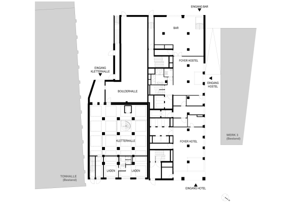
Siloaufstockung im Münchner Werksviertel von Steidle Architekten
Bild 28/33
Grundriss Erdgeschoss
Bild: Steidle Architekten