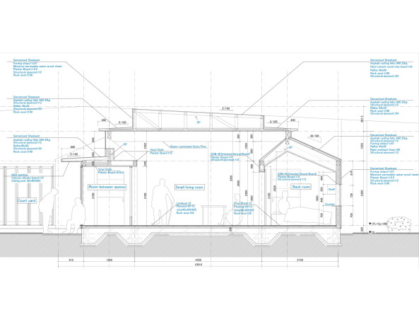
altenheim, japan, tojo, hiroshima, neubau, cluster, nachbarschaft, susumu uno, met architects, hiroshi ueda, holz, sperrholz, flexibel

Bild 13/14

Bild: Susumu Uno/CAn, MET ARCHITECTS