Die Meldung in Bildern
Holzbau und Sensoren
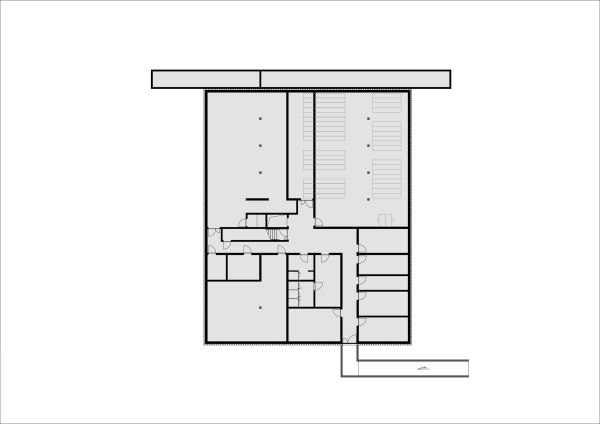
Seminarzentrum in Wien von SWAP und DELTA
Bild 23/30
UG2
Bild: SWAP