Schwimmbaderweiterung in Wien von illiz architektur
Bild 33/34
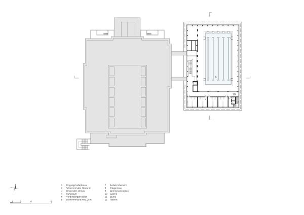
Grundriss 2. Obergeschoss
Bild: illiz architektur