Schweizer Ausbildungszentrum von Peter Moor Architekten
Bild 11/15
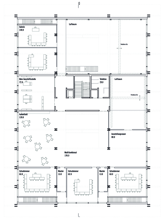
Grundriss Obergeschoss
Bild: Peter Moor