Schulumbau von ateliers o-s architectes
Bild 24/29
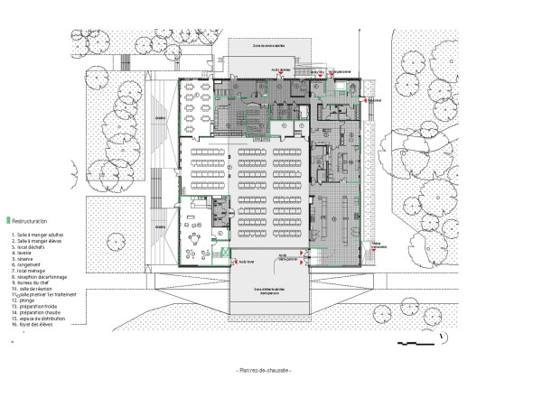
Grundriss Obergeschoss
Bild: ateliers o-s architectes