Die Meldung in Bildern
Rot wie Martins Mantel
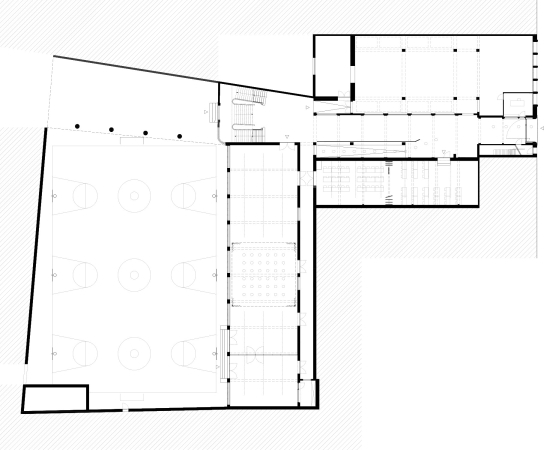
Schulumbau in Aalst von AUX
Bild 18/22
Grundriss
Bild: AUX