Die Meldung in Bildern
Sichtbeton und Aluminium
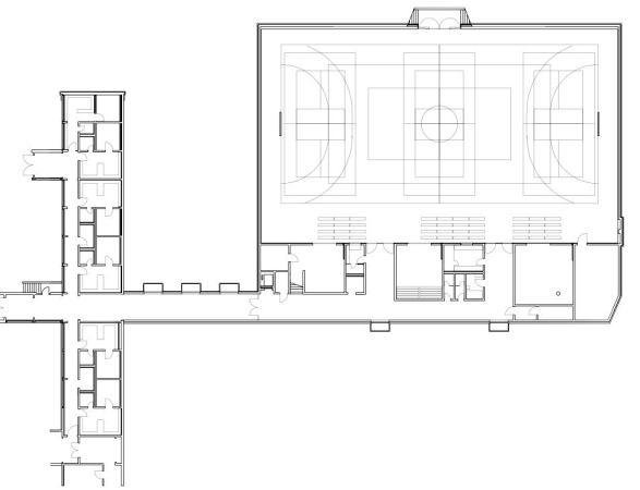
Schulsporthalle in Dresden fertig
Bild 16/19
UG