Schulerweiterung von hey! architektur in Wien
Bild 19/21
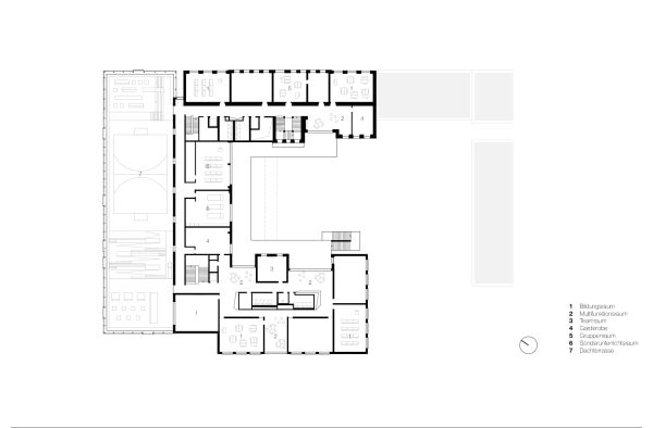
Grundriss 3. Obergeschoss
Bild: hey! architektur