Schulerweiterung von Dierendonckblancke
Bild 30/34
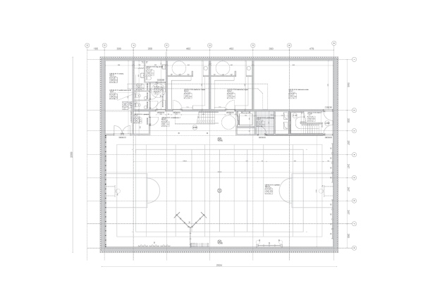
Neubau Sporthalle: Grundriss UG
Bild: Dierendonckblancke Architecten