Die Meldung in Bildern
Plattenbau im Holzgewand
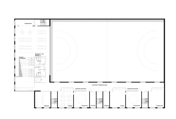
Schulerweiterung in Neuruppin von CKRS
Bild 19/24
Grundriss OG
Bild: CKRS Architekten