Die Meldung in Bildern
Anschluss übers Atrium
Schulerweiterung in Holm von Jan Braker Architekt
Bild 18/19
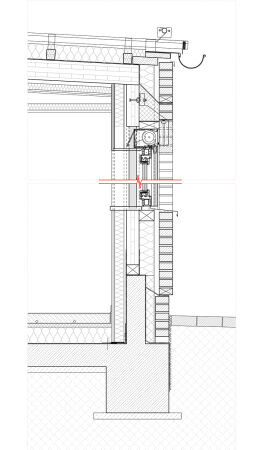
Fassadenschnitt
Bild:
Jan Braker Architekt