Bild 27/30
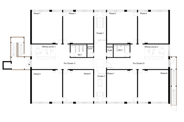
Obergeschoss unmöbiliert. Zwei außenliegende Treppen, eine interne Verknüpfung von je vier Klassenräumen zu einem Lerncluster und die Möglichkeit über Bypasstüren in den anderen Bereich zu flüchten bilden das Flucht- und Rettungswegekonzept, das den Flur zur Aufenthalts- und Lernfläche macht.
Bild: prosa Architektur + Stadtplanung
