Baunetz, Meldung, Architektur, architecture, Peeck.Daam, Bamberg, München, Bayern, Bavria, Deutschland, Germany, Munich, Erzbistum, Schule, school, Gymnasium, Realschule, Turnhalle, unterirdisch, Maria Ward, Maria-Ward-Schulen, Erweiterung, Bauen im Bestand, Altstadt, historic city, Kreuzgang, Hof, courtyard

Bild 14/25

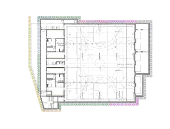
Grundriss, 2. UG