Die Meldung in Bildern
Farbenfrohe Streifen
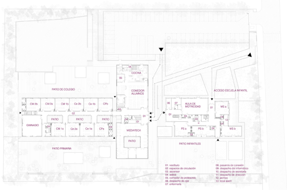
Schulerweiterung bei Madrid von Flint Architectes
Bild 13/16
Grundriss 1. OG