Die Meldung in Bildern
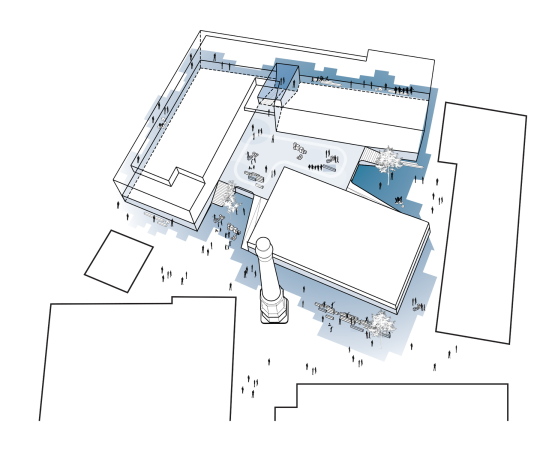
Auf der Lerntreppe in Kopenhagen
Schule von NORD und Vilhelm Lauritzen
Bild 22/28
Bild: NORD / VLA