Schule in Weimar von gernot schulz : architektur
Bild 26/28
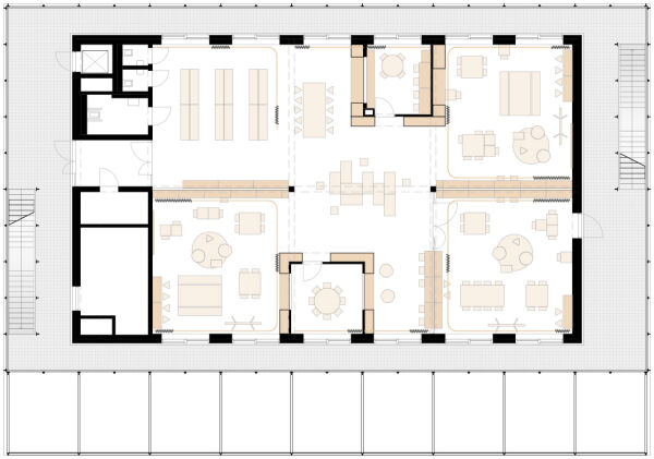
Grundriss 1. Obergeschoss (Stammgruppe)
Bild: gernot schulz : architektur