Die Meldung in Bildern
Büffeln an der Autobahn
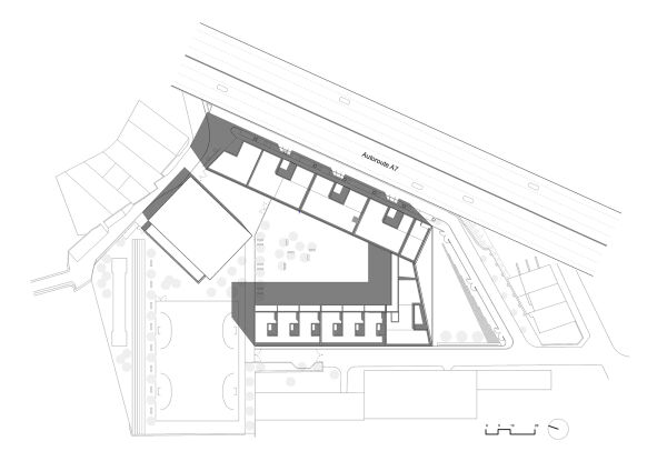
Schule in Marseille von Panorama Architecture
Bild 16/20
Lageplan
Bild: Panorama Architecture