Schule in Aachen-Preuswald von New Architekten
Bild 20/22
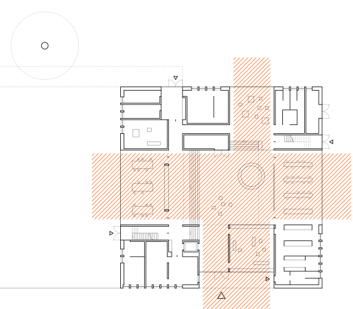
Diagramm: Beziehungen zum Außenraum
Bild: New Architekten