Die Meldung in Bildern
Freundlicher Fremdkörper
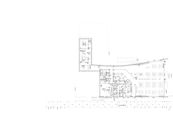
Schule bei Paris von r2k
Bild 25/30
Grundriss Gartengeschoss
Bild: r2k architecte