Die Meldung in Bildern
Durchs alte Werkstor in die neue Wissensfabrik
Schule bei Paris von Mikou Studio
Bild 21/32
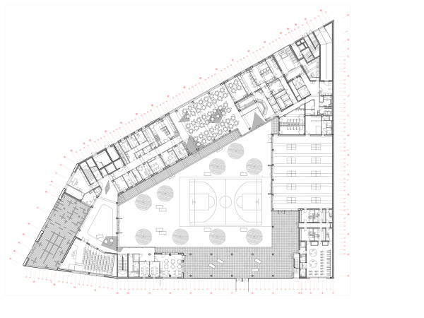
Plan Erdgeschoss
Bild: Mikou Studio