Die Meldung in Bildern
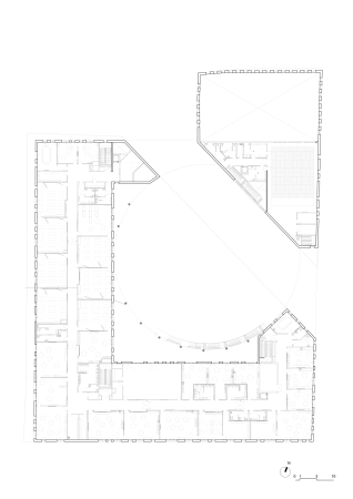
Kreise im Rechteck
Schule bei Paris von Atelier Aconcept
Bild 28/34
Grundriss 1. Obergeschoss
Bild: Atelier Aconcept