Die Meldung in Bildern
Frischluft in Winterthur
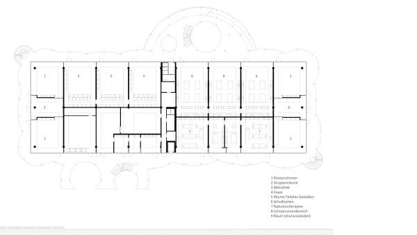
Schulbau von Schneider Studer Primas
Bild 12/17
Grundriss Erdgeschoss
Bild: Schneider Studer Primas