Die Meldung in Bildern
In der Halle studieren
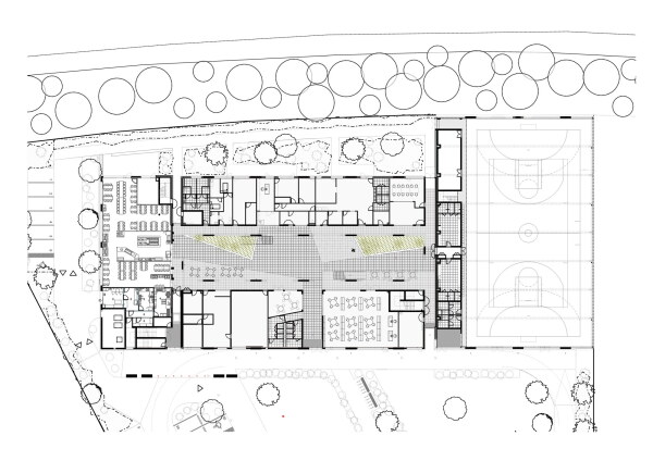
Schulbau von ALTA in Saint-Malo
Bild 9/15
Grundriss Erdgeschoss
Bild: ALTA