Die Meldung in Bildern
In der Halle studieren
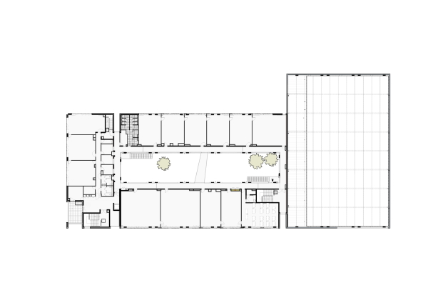
Schulbau von ALTA in Saint-Malo
Bild 11/15
Grundriss 2. Obergeschoss
Bild: ALTA