Die Meldung in Bildern
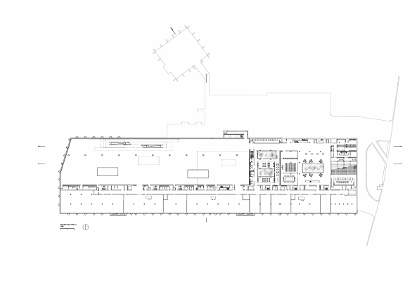
Glaskuben auf der Zeche Katowice
Schlesisches Museum in Polen von Riegler Riewe
Bild 24/34
4. UG