Die Meldung in Bildern
Sorgsamer Erhalt in der Auvergne
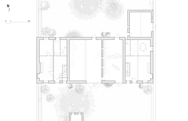
Scheunenumbau von COVE Architectes
Bild 17/22
Grundriss vor dem Umbau
Bild: COVE Architectes