Die Meldung in Bildern
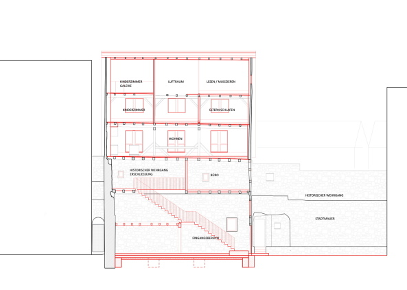
Steildach an der Stadtmauer
Scheunenumbau in Waiblingen von COAST Architekten
Bild 41/44
Längsschnitt
Bild: COAST Architekten