Scheunenumbau in Waiblingen von COAST Architekten
Bild 39/44
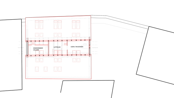
Grundriss 5. Obergeschoss/Dachgeschoss
Bild: COAST Architekten