Die Meldung in Bildern
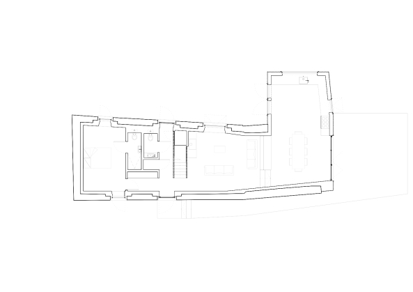
Bude Barn
Scheune in England umgebaut
Bild 10/12
EG