Die Meldung in Bildern
Plattenbau mit Holzaufstockung
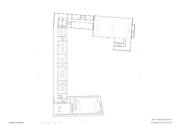
Sauerbruch Hutton erweitern Schule in Berlin
Bild 17/24
Bild: Sauerbruch Hutton