Sanierung von Tschudin Urech Bolt Architekten im Aargau
Bild 14/23
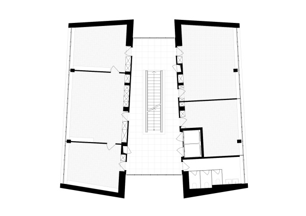
Grundriss 4. Obergeschoss
Bild: Tschudin Urech Bolt Architekten