Bild 27/29
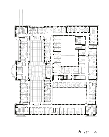
Haus 2, Grundriss 4. Obergeschoss: In den oberen Geschossen rahmen die Büroräume des Ministeriums die hohe ehemalige Kassenhalle, in der nun das Konferenzzentrum liegt.
Bild: KSP Engel
Bild 27/29
Haus 2, Grundriss 4. Obergeschoss: In den oberen Geschossen rahmen die Büroräume des Ministeriums die hohe ehemalige Kassenhalle, in der nun das Konferenzzentrum liegt.
Bild: KSP Engel