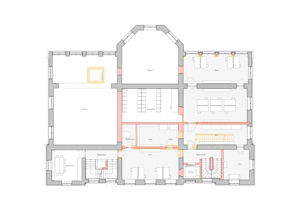
Grundriss 1. Obergeschoss mit Abbruch- (gelb) und Neubauelementen (rot)

Bild 21/32

Grundriss 1. Obergeschoss mit Abbruch- (gelb) und Neubauelementen (rot)

Bild: Feil Architekten