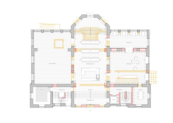
Grundriss Erdgeschoss mit Abbruch- (gelb) und Neubauelementen (rot)

Bild 19/32

Grundriss Erdgeschoss mit Abbruch- (gelb) und Neubauelementen (rot)

Bild: Feil Architekten