Die Meldung in Bildern
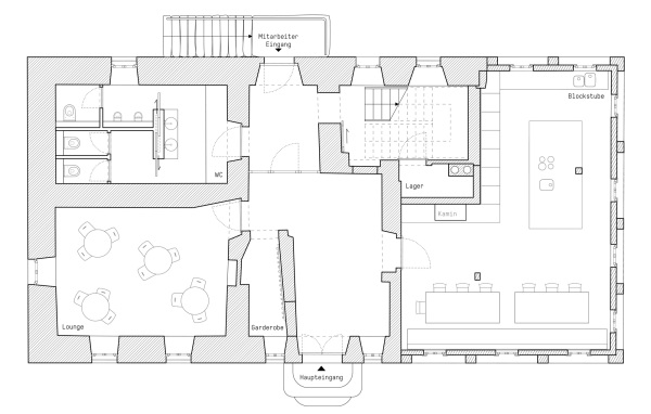
Oberlausitzer Umgebindehaus
Sanierung von Atelier ST
Bild 15/21
Grundriss EG
Bild: Atelier ST