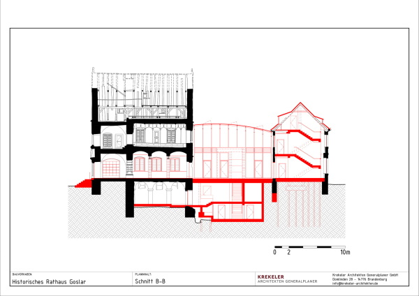
Sanierung und Umnutzung in Goslar von Krekeler Architekten
Bild 27/29
Schnitt
Bild: Krekeler Architekten