Die Meldung in Bildern
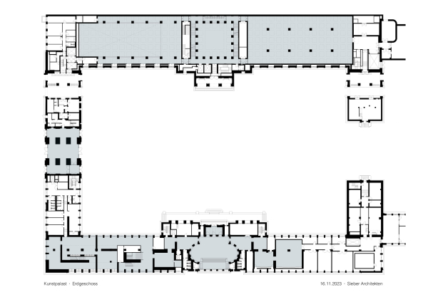
Museum Kunstpalast in Düsseldorf
Sanierung und Umbau von Sieber Architekten
Bild 27/30
Grundriss Erdgeschoss
Bild: Sieber Architekten