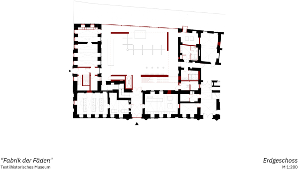
Sanierung und Umbau von Neumann Architekten in Plauen
Bild 24/30
Erdgeschoss
Bild: Neumann Architekten