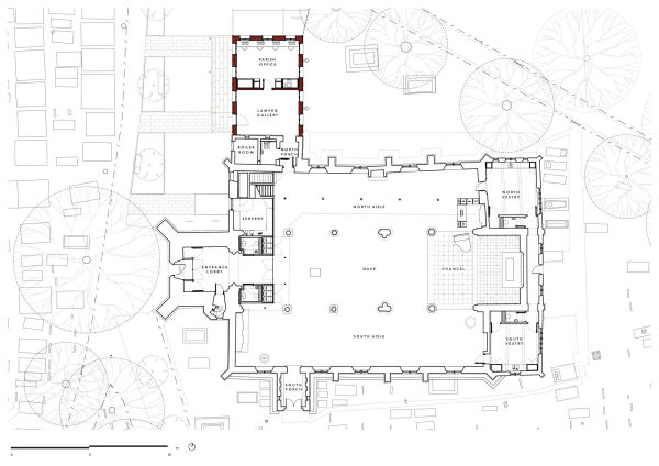
Sanierung und Erweiterung von Matthew Lloyd in London
Bild 23/25
Grundriss nach Umbau
Bild: Matthew Lloyd Architects