Die Meldung in Bildern
Modern Wohnen und Arbeiten
Sanierung in Thun von 1899 Architekten
Bild 8/10
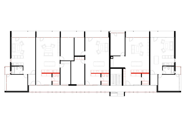
Grundriss Erdgeschoss
Bild: 1899 Architekten