Die Meldung in Bildern
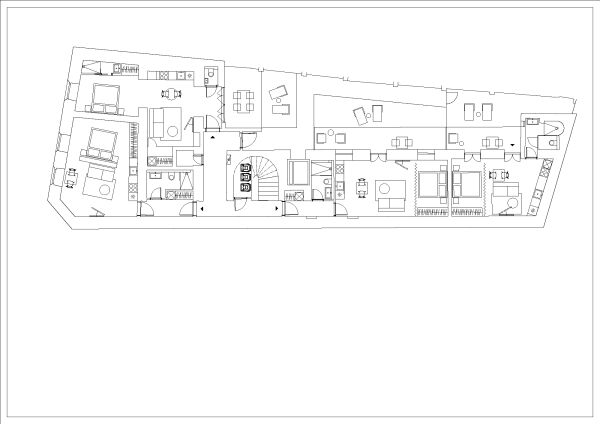
Betonwellen und Boutique-Wohnen
Sanierung in Prag von Plus One Architects
Bild 26/29
Untergeschoss
Bild: Plus One Architects