Die Meldung in Bildern
Wiedereinzug der Tapeten
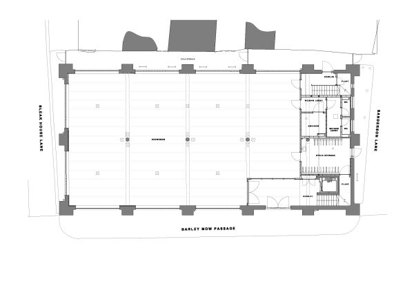
Sanierung in London von dMFK Architects
Bild 23/31
Grundriss Erdgeschoss
Bild: dMFK Architects