Sanierung in Berlin von Christof Schubert Architekten
Bild 35/39
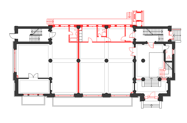
Grundriss Hochparterre
Bild: Christof Schubert Architekten