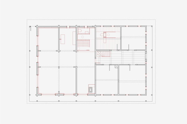
Sanierung eines Bergbauernhofes in Tirol von Benjamin Eder
Bild 21/24
Obergeschoss
Bild: Benjamin Eder