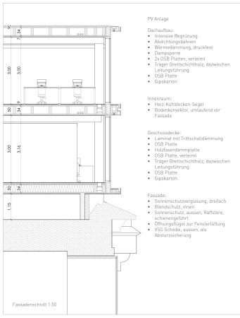
2. Preis: Kresings Architektur, Fassadenschnitt

Bild 35/44

2. Preis: Kresings Architektur, Fassadenschnitt

Bild: Kresings Architektur