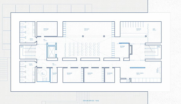
1. Preis: SMAA Studio für Architektur, Grundriss 1. Obergeschoss

Bild 11/44

1. Preis: SMAA Studio für Architektur, Grundriss 1. Obergeschoss

Bild: SMAA Studio für Architektur