Rundfunkstudio in Mannheim von Steimle Architekten
Bild 19/25
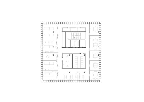
Grundriss 2. Obergeschoss
Bild: Steimle Architekten