Bild 10/14
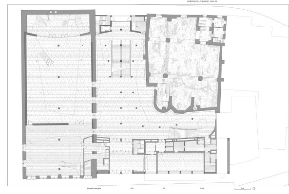
Festhalle Gürzenich in Köln (1949–55), Grundriss Erdgeschoss im Maßstab 1:200
Bild: gta Verlag / Rudolf Schwarz / Adam Caruso, Helen Thomas
Bild 10/14
Festhalle Gürzenich in Köln (1949–55), Grundriss Erdgeschoss im Maßstab 1:200
Bild: gta Verlag / Rudolf Schwarz / Adam Caruso, Helen Thomas